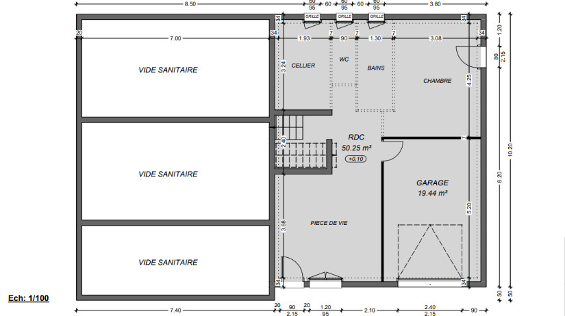
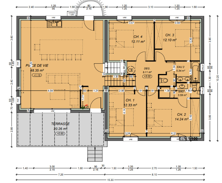
Découvrez ce projet exceptionnel sur la commune prisée de Rochefort-du-Gard : une maison de plain-pied de 110 m², moderne et fonctionnelle, sur un terrain de 900 m².
La maison se compose d’un séjour spacieux et lumineux, de 4 chambres confortables dont une suite parentale.
Nous réalisons votre maison sur-mesure nos modèles sont fournis à titre d’inspiration.
Un atout rare : la possibilité d’aménager un appartement indépendant d’environ 50 m², idéal pour générer une rentabilité locative ou accueillir un proche en toute autonomie.
Aux portes d’Avignon, la commune offre un cadre de vie privilégié : écoles, commerces, associations dynamiques, nature environnante et accès rapide à la gare TGV et à l’autoroute. Un lieu idéal pour conjuguer tranquillité, praticité et valeur patrimoniale.
Pourquoi construire avec Les Maisons Provence Occitanie ?
Plus de 30 ans d’expérience
Constructeur de confiance avec 7 agences régionales : Le Pontet, Montpellier, Nîmes, Orange, Cavaillon, Salon-de-Provence, Cabriès
Accompagnement complet, de la recherche du terrain à la remise des clés
Toutes les garanties du CCMI pour une sérénité totale :
Prix et délais garantis
Garantie décennale
Assurance dommages-ouvrage
Vous avez un projet : résidence principale, secondaire ou investissement locatif ?
Avec Les Maisons Provence Occitanie, bénéficiez d’un interlocuteur unique, d’un réseau de partenaires et d’une étude de financement pour construire l’avenir en toute confiance.
Vous ne trouvez pas encore le terrain idéal ?
Nous disposons d’une large base de terrains dans tout le Gard et les départements voisins.
Contactez dès maintenant notre équipe au 04 90 32 02 04 pour concrétiser votre projet sur Rochefort-du-Gard.
Informations
Type de propriété : Programme Terrain + Maison
Département : Gard (30)
Ville : Rochefort-du-Gard (30650)
Référence : ERD-ROCHFASTO2
Agence : LES MAISONS PROVENCE OCCITANIE AVIGNON





